Supplying Deck Designs and more   |   651.983.4061

Step 1

Your 1st and free step is to take a photo of your home on where the deck is going to be placed. In the front, side or back of the home I will need to see the entire home along with your yard so I can see any hills or and obstructions that may be in the way of construction.

 

If you have a deck size or design in mind please pass that along.

 

The more information you can provide the better I can design your deck just the way you envision your deck. So check out the decking and railing pages to get some better ideas on what you want for your deck

 

Once you have your photos of your home and some basic ideas for size and design you can email them to me at  Info@deckdesignsbyjoe.com

 

Step 2

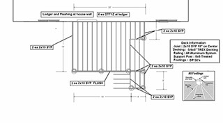
Deck Design

Deck design example 1
Deck design example 2
Deck design example 4

Once I have your photos of your home I will design the deck in 3D full-color. I will send a few shots from different angles, so you can see just what the deck may look like. At that time we can go over all the details you want such as colors, decking, and railing.

 

I will do four revisions of your design as part of the package. For more revisions I will require $50 for an additional four more revisions if needed.

 

My program is very good and clear on what decking will look like on your deck as an example AZEK deck has many colors, just select the colors you want to see and I will have your design reflect that color and type of composite.

 

Check out decking page to read more about decking options, also check out the railing page to see options on railing.

Step 3

Deck design example 5

At this point we now have all the details of your deck project and I have plans ready for your city and your HOA if needed.

 

At this time I ask for payment of $360

 

This will include

  •  All the detailed plans for building the project
  •  Permit plans for your city,with step by on how to apply with your city
  •  Material list with item numbers and best place to buy your lumber at the lowest price
  • Step by step building instructions over the phone and layout plans to follow along .
Deck design example 6
Deck design example 6

Step 4

Deck build By joe

Once you have submitted your plans to the city and get back your building permit...

 

                            It's Time to Build :)

 

In your plans I will have layout plans for each step of your building process from footings to frame to cutting your stairs and installing your railing.

 

Also a list of tools that will be needed to do the project. Many don't have all these tools so I can provide you where you can rent them at the best price.

 

I know many out there have not built such a project like a deck but feel handy enough they can do some things on their own. No worries I have you covered - I have many carpenter friends that can come out to your home and help with the construction that you feel you can not achieve on your own.

     Just give me a call and we can go over all the details @ 651-983-4061.

 

Deck build By joe 2
Deck build By joe  3
Deck build By joe 4
Deck build By joe with Arches

Step 5

 YOU HAVE BUILT YOUR DECK !!! All I ask is take photos of you building, video would be great so I can post to show others on how well it went for you and of course to show off to your friends and family on how great your deck turned out and saved thousand by doing it yourself.

Step 6

Deck Maintenance Schedule & Tips

With your package I will include the correct way to take care of your deck for years to come.

 

If you have an all wooded Deck I will give you all the steps on how to take care of it and when to re-apply stain and what stain to get and just where you can get it.

 

With Composite Decks, each manufacture has its own way to care for their product far as cleaning solutions and how and when to apply it, there is also registering for the warranty .

 

You have just invested money time and your labor to build a beautiful deck, if you take care of it the correct way it will last you for years to come .

 

 

 

© Deck Designs By Joe  |   651-983-4061 |  Hours open for calls  Mon-Fri 10:00-6:00